Work
Projects
Conference House Park
Queens Groundwater Restoration
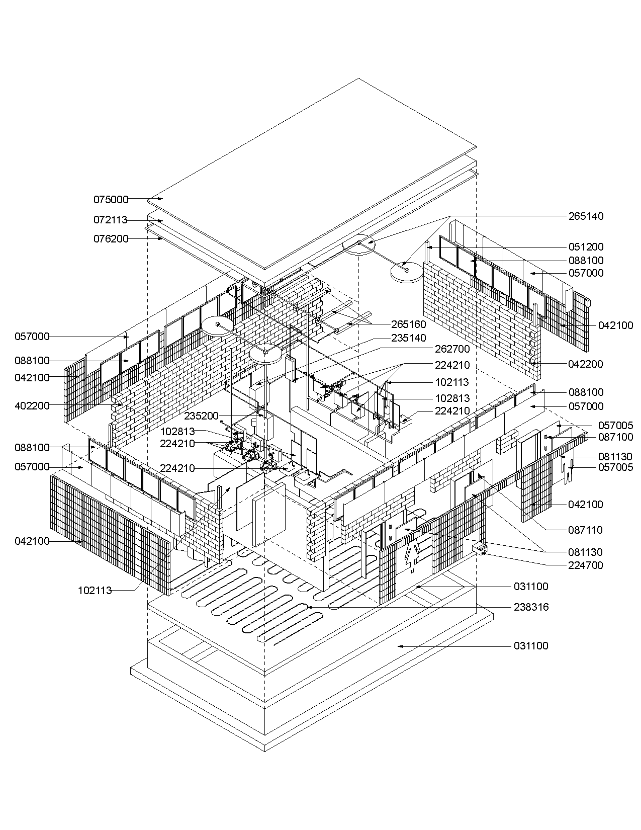
NYC Parks Comfort Station
CBRE Hana
Colossal Media
About
Menu
Andrew Kao
AIA, LEED AP
Work
Projects
Conference House Park
Queens Groundwater Restoration
NYC Parks Comfort Station
CBRE Hana
Colossal Media
About